KMP
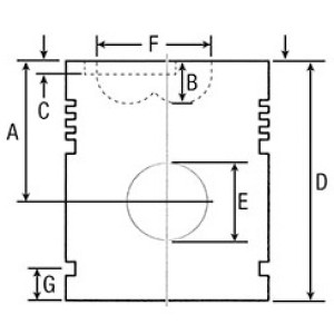
| Opis | STD--Fi 103,00 (E) B= 39,68 (F) PK= (2,50-2,50-3,50R) za trapeznu klipnjaču |
| A (mm) | 70,32 |
| B (mm) | 22,22 |
| D (mm) | 108,38 |
| E (mm) | 39,68 |
| F (mm) | |
| Alfin (mm) | NE |
KLIP BEZ KARIKA,-1
- Proizvođač: KMP
- Marka: Caterpillar , Massey Ferguson , Perkins
- Šifra artikla: 14044
- Raspoloživost: Nema na zalihama
Tagovi: KLIP BEZ KARIKA, -1



