Bepco
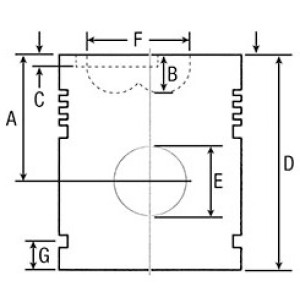
| Opis | STD--Fi 104,00 (E) B= 38,00 (F) PK=52,00 (2,50-2,50-4,00) za trapeznu klipnjaču |
| ALFIN (mm) | |
| A (mm) | 66,15 |
| B (mm) | 22,50 |
| D (mm) | 108,50 |
| E (mm) | 38,00 |
| F (mm) | 52,00 |
KLIP SA KARIKOM,-1
- Proizvođač: Bepco
- Marka: Fiat Iveco
- Šifra artikla: 8597
- Broj radnih dana za isporuku: 2
Tagovi: KLIP SA KARIKOM, -1



