Bepco
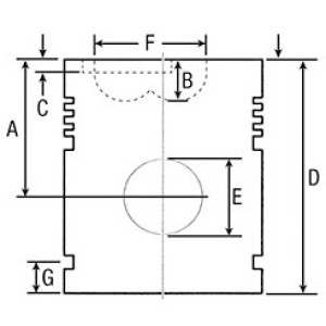
| Opis | STD--Fi 104,00 (E) B= 38,00 (F) PK=48,00 (2,50+2,50+4,00R) za trapeznu klipnjaču |
| ALFIN (mm) | NE |
| A (mm) | 65,15 |
| B (mm) | 21,30 |
| D (mm) | 104,20 |
| E (mm) | 38,00 |
| F (mm) | 48,00 |
KLIP SA KARIKOM,-1
- Proizvođač: Bepco
- Marka: Case-ih , Fiat Iveco
- Šifra artikla: 13593
- Raspoloživost: Nema na zalihama
Tagovi: KLIP SA KARIKOM, -1


