Proizvođač Koneks
Šifra artikla: 4396
-
30
-
1030, 1030 (Espana), 1030OU (Espana), 1030VU (Espana), 1130, 2030 (Europe), 2030 (Espana), 830 (Europe), 930 (Europe), 930VU (Espana), 3030, 3130, 3130 (Espana), 4030 (277550->), 1530 (179601->), 1830 (35mm (1.38 - Axe))), 2030 (35mm (1.38 - Axe)))
-
35
-
1035 (Espana), 1035EF (Espana), 1035EV (Espana), 3135 (Espana), 2035 (Espana) (35mm (1.38 - Axe))), 2035EF (Espana) (35mm (1.38 - Axe)))
-
40
-
2040 (USA ->349999), 2840, 2440 (35mm (1.38 - Axe)))
-
20
-
1020 (Europe) (EU 199743->), 1120 (199743->), 2120 (Europe) (->199743 ; 35mm (1.38 - Axe)), 2120 (USA) (->199743 ; 35mm (1.38 - Axe)), 2520 (157576-> ; 35mm (1.38 - Axe)))
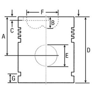
| Opis |
STD--Fi 102,00 (E) B= 34,94 (F) PK= (3,00-2,38-5,00T) |
| A (mm) |
66,30 |
| B (mm) |
21,80 |
| D (mm) |
112,0 |
| E (mm) |
34,94 |
| F (mm) |
53,90 |
| Alfin (mm) |
DA |
KLIP BEZ KARIKA,-1
- Proizvođač: Bepco
- Marka:
John Deere
- Šifra artikla: 6872
- Broj radnih dana za isporuku: 3
Tagovi: KLIP BEZ KARIKA,
-1