Bepco
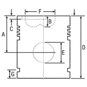
| Opis | +0,50--FI 105,50 (E) B=35,00 (F) PK=58,40 (2,50-2,50-2,50-5,00), |
| ALFIN (mm) | DA/NE |
| A (mm) | |
| B (mm) | |
| D (mm) | |
| E (mm) | |
| F (mm) |
KLIP SA KARIKOM,-1
- Proizvođač: Bepco
- Marka: Hurlimann , Lamborghini , Same
- Šifra artikla: 18208
- Raspoloživost: Nema na zalihama
Tagovi: KLIP SA KARIKOM, -1
