KLIP BEZ KARIKA,-1

KLIP BEZ KARIKA,-1

Proizvođač Sonne
Šifra artikla: 10365


KLIP SA KARIKOM,-1

KLIP SA KARIKOM,-1

Proizvođač Gb ricambi
Šifra artikla: 12499


PROPARTS DIESEL

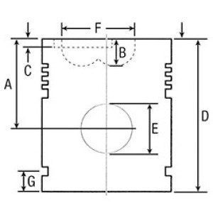
Opis STD--Fi 102,00 (E) B= 40,00 (F) PK=51,30 (3,00-2,35-4,00T)
A (mm) 71,62
B (mm) 22,10
D (mm) 105,40
E (mm) 40
F (mm) 51,30
Alfin (mm) DA

Napišite recenziju

Napomena: HTML nije preveden!
    Loše           Dobro

KLIP BEZ KARIKA,-1

  • Proizvođač: PROPARTS DIESEL
  • Marka: Cummins , Komatsu
  • Šifra artikla: 12893
  • Raspoloživost: Nema na zalihama

Tagovi: KLIP BEZ KARIKA, -1