GB RICAMBI, O.E. CNH
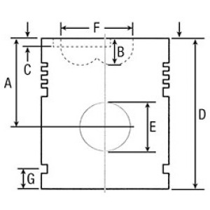
| Opis | STD--Fi 102,00 (E) B= 40,00 (F) PK=59,00 (2,38-2,38-4,00R) |
| ALFIN (mm) | NE |
| A (mm) | 71,60 |
| B (mm) | 19,40 |
| D (mm) | 105,36 |
| E (mm) | 40,00 |
| F (mm) | 59,00 |
KLIP SA KARIKOM,-1
- Proizvođač: GB RICAMBI, O.E. CNH
- Marka: Cummins
- Šifra artikla: 13457
- Raspoloživost: Nema na zalihama
Tagovi: KLIP SA KARIKOM, -1








