KLIP BEZ KARIKA,-1

KLIP BEZ KARIKA,-1

Proizvođač Zamenski deo achp
Šifra artikla: 16631


Bepco

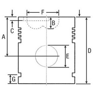
Opis STD--FI 98,425 (E)=36,00 (F) PK=55,00 (3,17-2,38-4,76R),
A (mm) 67,00
B (mm) 19,90
D (mm) 101,50
E (mm) 36,00
F (mm) 55,00
Alfin (mm) NE

Napišite recenziju

Napomena: HTML nije preveden!
    Loše           Dobro

KLIP BEZ KARIKA,-1

  • Proizvođač: Bepco
  • Marka: Case-ih
  • Šifra artikla: 14533

Tagovi: KLIP BEZ KARIKA, -1